三亚 BEEER PARK 酒吧
三亚海天盛筵,周边众星拱极般分布着各种游艇俱乐部和会所,汇聚的游艇仿佛归来的候鸟,蜿蜒点缀在海岸线上。这里宛如一个巨大的舞池,而BEEER PARK酒吧就是人群中的神秘美人,在声色奢靡的夜色中依旧能立刻抓住你的视线。

作为一个被抓住视线的人—— C身上海浪的潮气还未消散,而酒吧隐隐约约传来动感的音乐节奏,已经把细胞中沉睡的酒虫惊醒,雀跃着让身体加入这场狂欢。决定了今天的派对场所,C发消息通知了酒友,便走进了BEEER PARK。
▼ 酒吧外观


酒吧整体的灯光偏暗,但进入大门后,冷艳的红漆柜台和红色灯饰像是拉丁舞女郎的红色高跟鞋,立刻极富冲击力地跳进人们的眼球。斑驳的红砖,木质的桌子和高脚凳,加上整体底调用了冷感的红与黑的美妙搭配,组成了这个美式复古的品酒空间。“红色真是奇妙的颜色,它既让人警惕,又吸引着人不由自主地靠近。”C心里这么想着,坐在了吧台旁边。
▼ 轴侧分解图

▼ 室内概览

▼ 中央吧台

琳琅满目的美酒填满了水吧区的酒柜,它是大厅的焦点,很远就能感受到吧台给人带来的视觉冲击。光滑的银色金属材质,与红漆吧台有了色彩和质感上的碰撞,形态被设计成了一个由下往上向外延伸的弧形,像是美人从暗处伸出的手,杯中酒光摄人心魄,让你迫不及待地想邀她共饮。事实上C也这么做了,他点了这里的特制鸡尾酒,在调酒师操控着调酒瓶上下翻滚的时候,开始环顾店里的其他地方。
▼ 水吧区的酒柜

▼ 酒柜细部


酒吧里还有个颇长的啤酒长廊,与水吧区环绕着全开放式的大厅,这为喜欢社交聊天的人保留了舒适的公共空间。隔墙用铁网石笼与传统隔断,就像粗旷与精细的强烈对比,显得趣味十足。“这是跟那群戏精聚会的地方。”C对自己说。
▼ 从吧台看啤酒长廊


东边的卡座区则用黑色的铁艺网格分出了一个个小隔间……黑色的皮质沙发、黑色的吊灯、黑色的装饰镜,这些深色的点缀让这个区域的氛围与大厅相比更具沉淀感,让那些想享受酒精又不愿被喧嚣打扰的酒客,也能在此找到隐身之所。“……这是躲酒的地方。”C默默提醒自己。
▼ 东边的卡座区

▼ 开放卡座

▼ 铁艺网格分出的隔间

▼ 圆拱划分室内空间

▼ 黑色皮质沙发的座位

▼ 侧门圆拱旁的座位

熟悉了店内地形的C显得更放松了,他倚靠在吧台,怡然自得地哼起歌来。他似乎已经看到今晚……就在这个酒吧,一场属于酒精的海天盛筵,即将粉墨登场。“你一个人在笑什么?” 嘴边的笑纹渐深,C举起调酒师递来的美酒,向着刚跨进店门的友人们遥遥致意。敬美酒,敬良宵,敬友人,敬BEEER PARK。也敬自己。此刻无价,美酒万岁。
▼ 细部

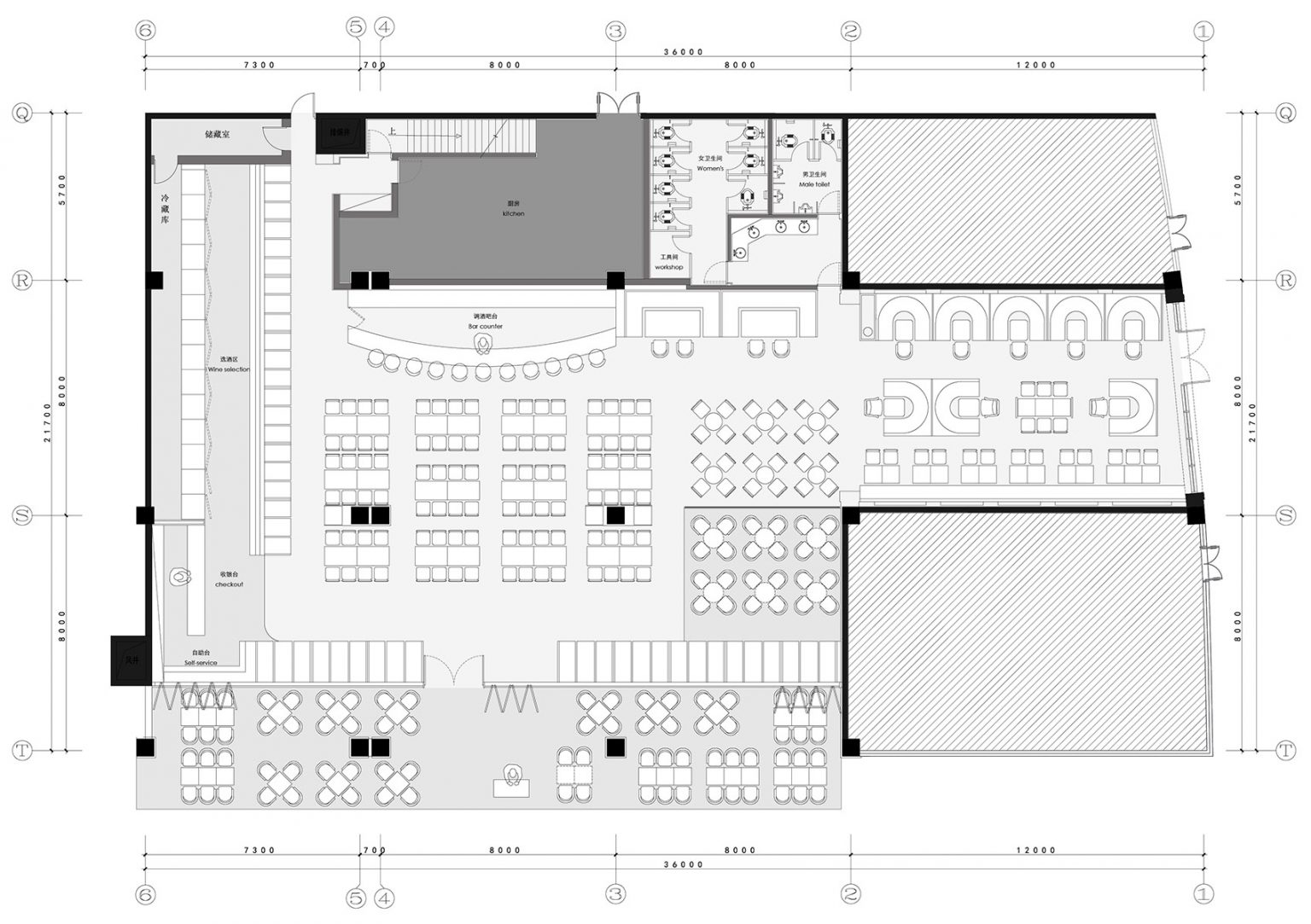
▼ 平面图

项目名称:BEEER PARK酒吧
项目类型:酒吧空间
项目面积:600平方米
项目地址:海南省三亚市吉阳区榆亚路鸿洲时代海岸东区健康城5-9
设计公司:博 . 想象能力/朱海博建筑设计事务所
主创设计:方潔、许畅
设计团队:林桂城
主要材料:金属、镜面、砖石、烤漆、木材、瓷砖、铁网
文案摄影:SIAD品牌部、陈桐
好设计网 www.haoooo.cn 欢迎投稿:infohaoooo@163.com
好设计网 www.haoooo.cn欢迎投稿:infohaoooo@163.com
