上海 ”聚福Shanghailander“ 咖啡厅,书报亭式咖啡馆
这是位于上海零陵北路延街的咖啡厅“聚福 Shanghailander”的室内设计。
小学前面的报亭
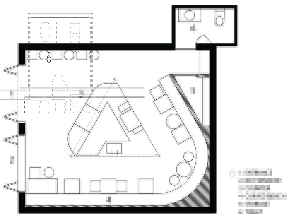
选址位于居住区高楼耸立的一角,是公寓的底层沿街商铺。隔着一条马路,店铺的正对面是一所小学。上下学的时候,路上挤满了孩子和接送他们的家长。因此,我们决定打造一个社区居民和父母都能随性进入的书报亭式咖啡馆。于是在室内的正中央安置了吧台,并且通过打开外立面的折叠门,让室内空间向街道开放。
▼ 敞开的折叠门

▼ 从入口望吧台

带拱顶的三角形柜台
经过几次商讨,我们与运营负责人最终确定了这个边长3.6米的三角形柜台。考虑到一位店员需要在这有限的空间内高效地工作,给柜台的三个面分别赋予了不同的功能。柜台的上方是铁板做的拱形圆顶,远远地就能够一眼看见。将底部柜台与上方拱顶从结构上分离,使拱状圆顶的形状更加纯粹,同时,简化了施工。拱顶借鉴了对面的小学外墙,刷上了珊瑚色,给人以亲切和熟悉感。墙上安装了书报亭样式的自制壁灯。
▼ 柜台示意


▼ 三角形柜台


▼ 柜台一侧

迎接客人到来的背景墙
柜台周边的墙壁上镶嵌上水平方向延伸的木板。我们借鉴了原本建筑外墙的水平线,将其引入室内。并运用在长椅的靠背、放置菜单的凹槽、门的把手上。此外,沿着这条线,在入口边的墙壁上安装了镜子,将室外的街道投射在墙面。这些背景招揽着人们从室外走进室内,沿着长椅直至室内尽头的盥洗室。
▼ 窗边用餐区


▼ 连续的木质长椅


▼ 细部


在弯曲的长椅上,喝着咖啡,惬意地等待孩子回来。愿这家咖啡店能够悄无声息地融入到此社区中,成为人们日常生活中的一部分。
▼ 室内尽头的盥洗室

▼ 平面图


项目名称:聚福咖啡厅零陵北路店
项目类型:咖啡厅
项目面积:51平方米
项目地址:上海徐汇区零陵北路23号
设计公司:一岸建筑设计
主创设计:松下晃士
主要材料:木材、玻璃、马赛克、镜面、钢、地坪漆、肌理漆、白色乳胶漆
空间摄影:Alessandro Wang
好设计网 www.haoooo.cn 欢迎投稿:infohaoooo@163.com
好设计网 www.haoooo.cn欢迎投稿:infohaoooo@163.com
