自贡 LA GOCCIA 意式西餐厅

万谦集设计 / 中国 自贡
2021-08-03

酒馆

印象中,酒馆是一座城市狂欢夜晚的代名词,或是纵情歌舞又或是一方清悠,人们在这里疗愈人心,释放天性寻获自由。而这次的项目“意大利酒馆LA GOCCIA自贡店”,在汪宏的设计下被赋予了当代酒馆设计的新方向。无论时代如何变迁,自由永远是人们不遗余力去追求的渴望,人们试图在生活之外的茶酒、游戏、舞曲、运动等消遣中获得自由的可能,而酒馆,便是其中一个“出口”。你必然在这里,遇见一个偶然的我。

元素

“意大利酒馆LA GOCCIA”新店,坐落在四川省自贡市,设计师试图从威尼斯与自贡的共性切入。自贡“因盐设市”,“自、贡”两个字就是由“自流井”和“贡井”两个盐井名字合称而来;而威尼斯由于缺乏可耕地,人们只有向大海索取生存资源。从地中海中制盐然后运到缺盐的欧洲内陆,威尼斯商人因此赚到了自己的第一桶金。盐这个载体自然就成为两地的地域共性。 因此,设计师引入“盐井”的元素在建筑空间当中,营造出既可用餐,又可会友酣谈、酌酒娱乐的社交场所。两相融合,恰如在繁华都市中的惬意小歇,寻到一方自由。丰富的沙漠植被给予了外摆区轻松惬意的休闲氛围,成为了年轻人下午茶、休闲打卡之场所。

2.jpg

▼ 丰富的沙漠植被给予了外摆区轻松惬意的休闲氛围

3.jpg

井盐是传统的采盐方式在自贡已有两千余年历史,现已成为中国非物质文化遗产。在每一口井盐上都有一部天车,自贡曾经就是一座遍布天车的城市。所以说天车可以算是自贡的地域文化标签了。设计师在进行空间创作时很快就抓住了这个点来作为空间的艺术主题,具象的盐井通过艺术创作后再抽象表达出来,并通过在天花板上开井口的方式将天车倒置在井口里,形成夸张视觉感受。

▼ 井盐与天车

4.jpg

▼ 分析图

5.jpg

空间

酒馆面积约400㎡,原始建筑空间层高优越,设计师充分利用层高优势,让室内空间出现地形高差,并形成局部夹层。夹层的设计不仅拓展了营业面积还丰富了客人的体验感。夹层是无柱的,采用了拉索结构,像悬空的摇篮悬浮在半空形成轻盈的视觉感受。

6.jpg

▼ 设计灵感来自河流冲刷出来的峡谷流线

7.jpg

▼ 涂料的运用还原了自然

8.jpg

4.8M的层高能塑造出有雕塑感的空间艺术,设计师在自贡特有的沟谷地貌中获取到灵感,将河流冲刷出来的峡谷流线作为空间的曲面形态,雕琢出极具律动感的空间构成形态。干枯的沟谷留下水冲刷过的痕迹,在这里岩石固有的质感给设计师留下深刻印像。肌理涂料恰好能还原这一点,大量的涂料运用不仅能还原自然,给客人创造亲切的感受还大幅度俭省了投入成本。

▼ 室内空间出现地形高差,并形成局部夹层

9.jpg

▼ 极具律动感的空间构成形态

10.jpg

仿铜不锈钢的运用是为了突出精致感,能和墙面肌理形成强烈的视觉反差对比。大面积的木饰面则采用贴仿真膜的方式,这样既能还原出近乎真实的自然质感,也是传达着设计师对生态环境保护的意愿。青砖的运用增强了厚重的质感,其砌筑方式是对自贡当地文化的尊重,这源自于自贡井盐作坊的传统建筑方式。

▼ 吧台区采用了大量木饰面与青砖

11.jpg

▼ 天花板上的井口

12.jpg

外摆区的条件也是优越的,让空间的进深更有层次,设计师将北侧的开启面尽可能的做大,室内外的界面模糊化处理,再加上地面材质一体化的延伸,外摆区三米多的尺度也纳入一体化的空间视觉感受里。因此,延伸了原本局促的空间,让视觉效果得到了极大的改善。

▼ 座位区

13.jpg

▼ 座位区细部

14.jpg

拾级而上可至二楼,这里是带来沉浸式体验的酒馆,空间情绪的铺陈在这里达至极浓,可以开启深夜的微醺与内心的自由释放。空间在视觉上的迷人,听觉上的深情,给人带来内心的共振,从而发掘心底最真实的自我。盐在自然状态下是不规则的多面结晶体,其组合形式是自由的,设计师在空间中植入了抽象的几何状晶体雕塑来还原盐的自然状态,为空间加入了灵动感。

▼ 抽象的几何状晶体雕塑来还原盐的自然状态

15.jpg

▼ 拾级而上可至二楼

16.jpg

延续

每个时代都有属于每个时代的精神与节奏。我们何其有幸生活在一个开放多元的时代,它包容且自由,无论是艺术、文化还是精神。在这样的境况下,我们邂逅了这个商业空间——LA GOCCIA餐吧,并让我们有机会将它从意大利威尼斯发散至成都太古里,再延续到自贡华商国际,可以用设计去创新和延续,为空间铺叙内涵,来呈现这个时代下独特的精神自由,这是我们的荣幸。

▼ 空间细部

17.jpg

▼ 家具细部

18.jpg

我们用设计定义空间,但不想定义其中的艺术精神,希望进入这个空间的每个人都能基于自身的感知,获得无限自由的想象,形成千千万万面对空间的审美情感。当他们踏入LA GOCCIA的那一刻起,便能从日常的纷繁与压力中脱身而出,在这里获得一场灵魂的自由憩息,畅言酣谈,寻回真我。

▼ 设计图解

19.gif

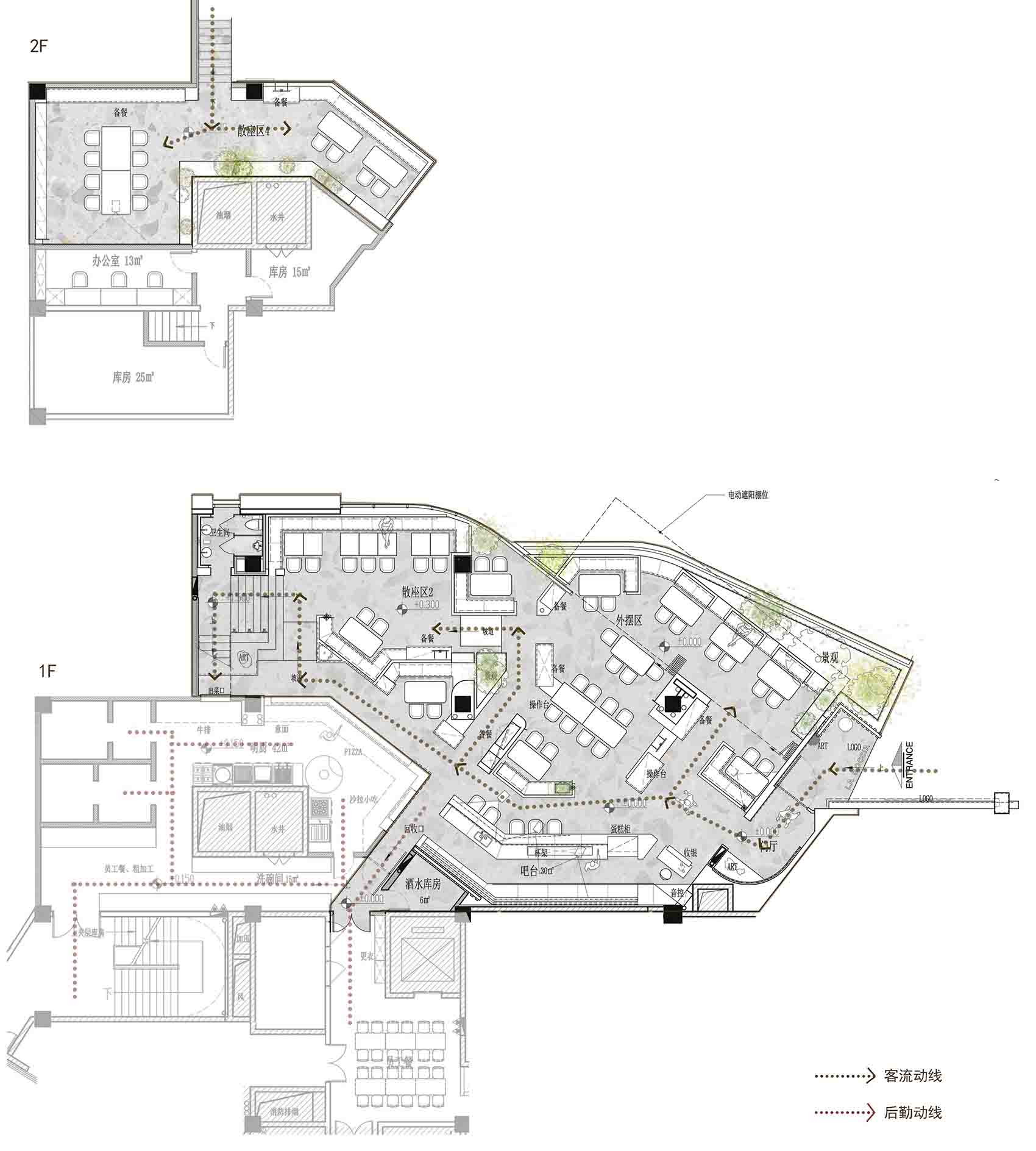
▼ 平面图

20.jpg


项目名称:LA GOCCIA意式餐吧

项目类型:餐饮空间

项目面积:435平方米

项目地址:四川省自贡市自流井区汇龙路华商国际城二期蓝岸天街14栋3楼-02号

设计公司:万谦集环境艺术设计公司

设计主创:汪宏

设计团队:罗溦、巨思吉

主要材料:水磨石、艺术涂料、自流平、木纹贴膜、玻璃砖、金属、青砖

空间摄影:形在建筑空间摄影 贺川


好设计网  www.haoooo.cn      欢迎投稿:infohaoooo@163.com

好设计网  www.haoooo.cn
欢迎投稿:infohaoooo@163.com