Holiland Market 武汉店
集市,是一种极具共情特点的社会生活场景。在集市中,食物成为纽带,串联食客、品牌和场景。温馨友好的社交氛围,既增强了个体的情感体验,也让本应属于独自狂欢的消费行为发酵成一场美食爱好者的社群派对。这种由空间体验在心理层面触发的社会化行为,闭合出集市独特的“场所精神”。



SLT受好利来Holiland之邀,打造其位于武汉天地的全新主题店。在一个国际潮流与前卫文化灵感交相辉映的商业中心,“集市Market”概念的选择是一种人文主义的温情回归。在此基础上,SLT用极具现代感的材质和跳跃活泼的元素来突破人们对“集市Market”的固有印象,在传递好利来Holiland“天然新鲜”食材理念的同时,构建“Holiland Market”年轻化、个性化、潮流化的现代精神属性。
在Holiland Market的设计中,我们利用自然界基础的三种形态——“圆”、“方”、“三角”,对内外空间进行形态构思和统领划分。作为造型结构中精髓元素的归纳,这三种简洁的几何造型传递出不同的情感线索和视觉印象:“圆”象征交流、沟通;“方”代表传统;而“三角”代表潮流。

▲ 空间动态示意
三种建筑体块的相互配合、交融、形变,既是对蛋糕造型的视觉呼应,也是对“集市”多元文化内涵的映射。Holiland烘焙的创意灵感与集市生活的人文体验在视觉上交叠在了一起。

Holiland Market的外摆区域既是对露天集市摊位的还原,也是室内空间的延伸。作为过路行人的First Sight,由三种基础形态对应生成的三个不同的主题“摊位”通过极具潮流感的活力色彩夺人眼球。

而摊位造型上的差异从社交属性的心理学特点上,暗示了人群的不同聚合模式。不锈钢烤漆材质的方形座椅模块为非固定的场所道具,在保证耐用性的前提下,可以根据顾客数量、就餐规律、餐位密度适应不同的就餐形式,体现集市灵活性、流动性、适应性的特点。

从大门径直进入,映入眼球的蛋糕展示区是由SLT精心打造的不规则的弧形展台。弧形由基础形态“圆”通过无线变幻得来,而“圆”作为一个极具包容感的象征图形,暗示着弧形展示台在任意方向上的观赏性。空间的体验面向变得多边化。同时,作为一个视觉中心,垂直方向上三种不同材质构成的弧形元素,彼此交错,在有限的室内环境里制造出观看体验的呼吸感。




室内的墙面采用了水磨石、肌理漆等材质,色彩的运用上延续了活力橙与青草绿,传递出青春自然的氛围。嵌入式柜台金属板的创造性运用和天花上的动态旋转屏幕,在制造视觉冲突效果的同时,为空间带来一丝动感。




蛋糕与人类情感的联结是什么?是喜悦的礼赞,是温馨的早餐,是节日的馈赠,还是甜蜜的幻想?在Holiland Market,我们回归到最具烟火气息的街头巷尾,在车水马龙的商业区构建了一个透明的、愉悦的、开放的记忆容器。熟悉集市的亲切与创意空间的惊喜,将微妙而新鲜的体验融合。烘焙的乐趣和灵魂的欢愉在一瞬间的满足中引爆——这便是Holiland Market的精神意义。





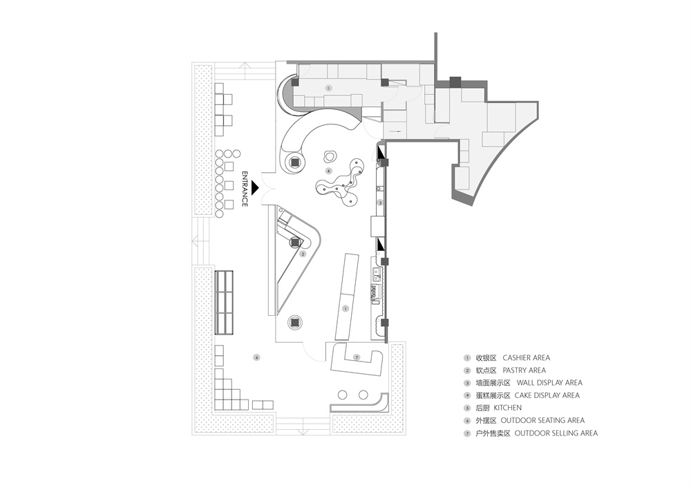
▲ 平面图
项目名称:好利来(武汉天地 Market主题店)
建筑面积:119㎡(室外),116㎡(室内)
项目地址:武汉市江岸区芦沟桥路68号武汉天地10号楼
设计单位:SLT(Studiolite)设计咨询有限公司
主创及团队:凌晨、姜珊珊、蔡雅倩、牛晨雨、王慧雯、韩思、宋怡萱
施工单位:上海缇琪实业有限公司
空间摄影:吴鉴泉
项目年份:2021
好设计网 www.haoooo.cn 欢迎投稿:infohaoooo@163.com
好设计网 www.haoooo.cn欢迎投稿:infohaoooo@163.com
