斯洛文尼亚风格M住宅, 建筑与环境相融
SoNo Arhitekti / 斯洛文尼亚
2015-07-08
M住宅是一栋斯洛文尼亚风格的住宅建筑,三条带有标准尖屋顶的长方体体量并置且前后稍微错开,整个住宅的外立面的色彩为深色,除了侧面山墙采用了深色和浅色的组合(木板与纤维水泥板)。沉稳的色调十分协调与周边的桦树林和风景相融合。



▼ 餐厅

▼ 餐厅厨房

▼ 入口玄关及楼梯

▼ 楼梯细部

▼ 主卧

▼ 主卧更衣室

▼ 主卧卫生间

▼ 客厅一侧阁楼

▼ 阁楼

▼ 俯视客厅

▼ 小孩房

▼ 小孩房外面的门廊空间

▼ 夜景

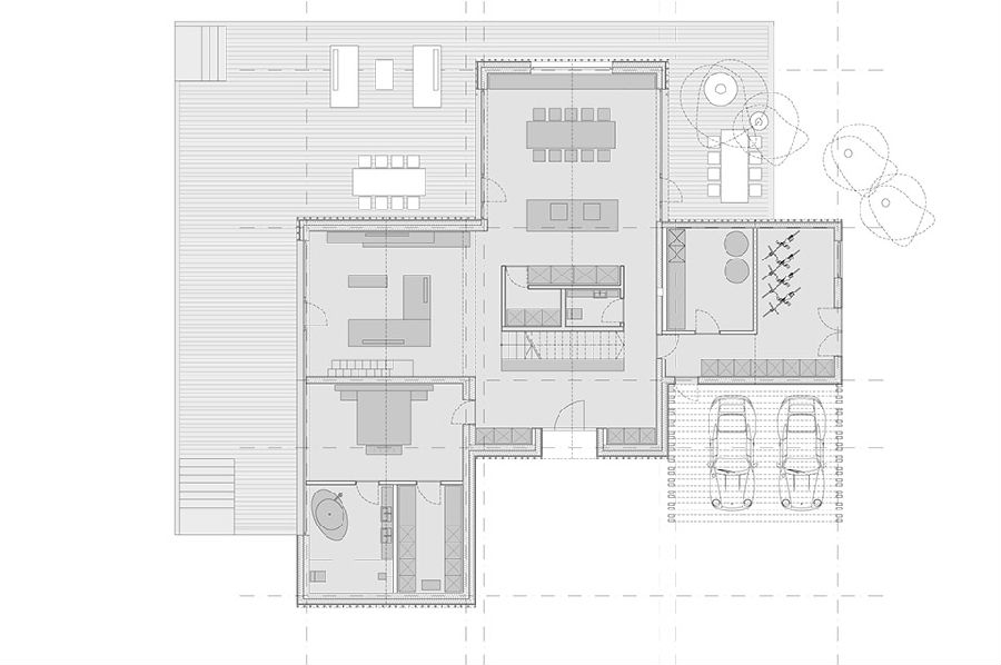
▼ 一层平面图

▼ 二层平面图

▼ 剖面图

内部自然的木彩色和白色与外部的色彩形成反差。三条长方体体量在一层相连合并出一个完整的大空间,这里是住宅的厨房,餐厅还有起居室所在地。在长方体体量的长轴方向,朝向景观设置大开窗,拥抱草地、丘陵、森林。户外露台十分宽阔。除此之外,一层还有停车场,工具间,以及带步入式衣柜的主卧套间。主卧上方空间用作小阁楼。入口玄关正对的楼梯被精心设计,成为极有风格的带展示功能的楼梯。在二层,设置的是孩子们的卧室和学习玩耍室。
好设计网 www.haoooo.cn 欢迎投稿:infohaoooo@163.com
好设计网 www.haoooo.cn欢迎投稿:infohaoooo@163.com
