山东省美术馆新馆,以山、城相依为主题
“美术馆建设用地是个梯形地块,如果和博物馆、档案馆一样仍在南边开大门,它的入口必然会拥挤不堪,附近道路的交通压力也随之增加。必须扭转这些劣势。同济设计的李立、王文胜等团队成员经过分析,创意之初即决意将博物馆与美术馆之间的道路改造为步行广场,美术馆的主入口改朝西向,与博物馆前广场连成整体,“这样,‘品’字形建筑就围合出一个安全、连续的步行空间,广场味一下子就出来了。”建筑师李立说,公共场所交通和停车都很重要,于是设计方案在博物馆入口平台下形成应急交通环道,并在步行区域外围组织机动车停靠点;同时强化博物馆广场的地下空间的枢纽作用,将其商业、停车空间作为区域资源共享。

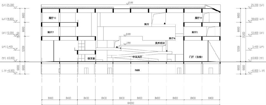
为了符合济南城市向东发展的重要空间节点,位于山东文博中心的山东省美术馆新馆需要成为这一空间的引领者和整合者。 一方面,美术馆要与博物馆、档案馆的方整体量以及轴线关系取得呼应,形成“品”字形格局;另一方面又要与博物馆共同围合馆前广场,形成一定长度的广场界面。于是,设计确立了美术馆主体四层、局部六层的体型特征。

建筑体型特征如何呼应周围环境及济南地理特点?调研发现:济南南部,泰山余脉在此与城市平缓交接,隆起有长城岭、跑马岭、梯子山、千佛山、马鞍山、五里山、六里山等山峰,构成济南的重要地理特征。于是,美术馆的建筑设计确立了以山、城相依的主题,建筑形体从四层的山形自然过渡到六层的方形;并在“山·城相依、泉·城相映”理念的贯穿下,场馆样式从南往北采取了退台式形体,往北层数渐渐增高,形状由梯形渐变为正方体;而“泉”的意象则由屋顶的天窗来体现。

“设计中还融入中国传统园林的意象。”建筑师李立说,园林方寸之内有乾坤、咫尺天地尽旷远的意境给了他很大的启发,美术馆的范围、空间也有限制,因此设计了在南面的梯形空间转折的位置,对应建筑外观的两个缺口,并在此强化对角空间;并且,让每一参与空间构建的实体彼此间错动、扭转,加强空间的流动感。

“设计中还融入中国传统园林的意象。”建筑师李立说,园林方寸之内有乾坤、咫尺天地尽旷远的意境给了他很大的启发,美术馆的范围、空间也有限制,因此设计了在南面的梯形空间转折的位置,对应建筑外观的两个缺口,并在此强化对角空间;并且,让每一参与空间构建的实体彼此间错动、扭转,加强空间的流动感。



首层大厅是以“山”为主题的空间,展厅的适当扭转出挑提供了多层次的展示平台。漫步而上的坡道、扭转的形体、架空的天桥赋予人们不期而遇的空间体验,这里将与当代艺术作品一起构成生动的立体景观。二层大厅是以“城”为主题的空间,规整简洁的多功能大厅成为展线环绕的内核,北向的大型天窗塑造出均匀柔和的光环境,这里将为观赏近、现代艺术作品留下安静沉思的空间。馆内,“山”与“城”通过参观线路联系成为整体,从“进山”线路开始,依次组织了“山间小径”“峰回路转”“夹壁磐石”“豁然洞开”“古城远望”等一系列空间场景。



新馆的建设总面积5.2万平方米,其中地上五层,地下一层。馆内一至四层设有展厅12个,展览总面积19700平方米,实际可用展线1600米。如此庞大的体量,如果不在设计之初就预设并规划好展览各种情形,科学分配各功能区面积,将会带来很多问题。
从功能布局角度来讲,美术馆一至四楼都有咖啡厅,地下有下沉式餐厅。馆内还设置了艺术衍生品商店、书店、儿童托管区、学术报告厅、美术培训教室等。




另外, 美术馆需要不断且频繁地更换展览,于是集装箱货车、专业卸货平台和吊装设备都得在馆内方便地施展拳脚,并且大型货梯的服务半径要求能均匀覆盖展区,因为当代艺术展的异形、巨量常常都会超出正常的尺度。按照这样的要求,所有展厅的大门设计高度都超过了3.6米,各层展厅地面荷载均充分考虑了重型展品的布展要求;在展馆一层特设了12米层高、33米跨度的主展厅,还配备了电动升降吊顶以保证空间调整的灵活性。
好设计网 www.haoooo.cn 欢迎投稿:infohaoooo@163.com
好设计网 www.haoooo.cn欢迎投稿:infohaoooo@163.com
