西班牙梅诺卡岛极简自然的构架式住宅
该地块位于西班牙梅诺卡岛的东北海岸,在城市化的Noves海湾内,可以欣赏到壮丽的海景。






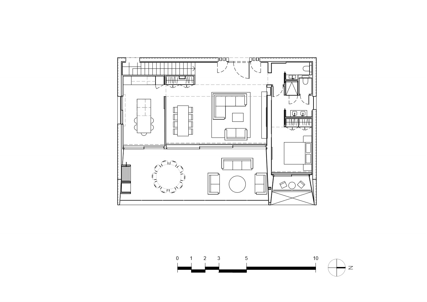
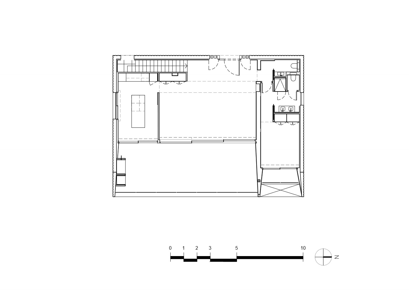
该地块的陡坡和场地规则使得房屋选址的位置变得非常有限。为了避免前面的房子挡住海景视线,房屋被推到地块的最高点,主入口位于一楼。为了进一步保持清晰的景观视野,传统的空间规划模式被颠倒,使休息区与卧室位于地面层,只有主卧室在顶层,这是为了回应客户的要求,他们想要一套夏季别墅,便于他们在周末短暂停留时开放,也许只有夫妇两住在那里。这样,房子可理解为是一个单层阁楼,为孩子和楼下的客人提供了一个可延伸空间。



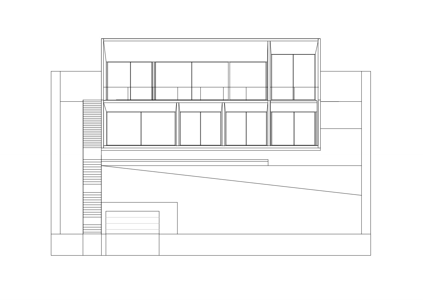
海景立面的开放性与侧立面和背立面的不透明性之间的强烈对比产生了强烈的框架效果。为了进一步增强这种效果,屋顶倾斜向着视野开放,整个前立面从地板到天花板都有大型滑动窗户。屋顶使用了通常只在工业建筑中使用的预制空心板,这使我们能够创建一个11米的大跨度,创建出一个无柱露台,使得观景视线完全没有受到干扰。一个预制元件被从屋顶上移除,形成了一个大型无框天窗,为无窗的背部带来光线。




厨房和起居室设有大型推拉窗,可通往43平方米的大型有盖露台,人们经常在这里举行聚会。主卧室设有私人阳台,与公共露台没有视觉联系。客户想要一个能为为孩子提供隐私的房子,因此孩子们的卧室都有他们独立的私人浴室和露台以及仅供他们使用的额外起居室。这就为年轻人提供了私人和公共区域的混合体。




外立面选用现浇混凝土作为零维护材料,混凝土在梅诺卡岛的高湿度和极端盐水平的侵蚀性气候中会很好地随岁月老化得愈加迷人。房子的灰白色立面与房子周围的赭色和赤土色土壤融为一体。最后,立面上的垂直条纹浮雕带围绕着门窗,使建筑立面在视觉上得到统一。



设计所选用的产品在良好的质量与价格之间达到了良好的平衡。良好的技术支持对架构研究和极简主义线条也非常重要。此外,作为非常大的本土品牌,所选用的产品都在梅诺卡岛都能提供良好的售后支持。







▲ 平面图

▲ 平面图

▲ 平面图

▲ 平面图

▲ 剖面图

▲ 剖面图

▲ 立面图
建筑类型 私人住宅
项目面积 300平方米
建筑地点 西班牙
建筑师 NOMO STUDIO
设计团队 Karl Johan Nyqvist, Jordi Ribes
委托客户 Privado
项目年份 2018年
建筑摄影师 Adrià Goula
好设计网 www.haoooo.cn 欢迎投稿:infohaoooo@163.com
好设计网 www.haoooo.cn欢迎投稿:infohaoooo@163.com
