土耳其Milano Gourmet,温馨的意大利风格美食空间
Slash Architects / 土耳其 伊斯坦布尔
2019-05-23
Milano Gourmet餐厅的设计考虑了地方的自然元素,是一家结合熟食店、餐厅和酒吧的美食空间。餐厅位于伊斯坦布尔Nişantaşı最受欢迎的街道酒吧之一,餐厅面积250㎡。装饰旨在通过所使用的材料和室内感觉反映意大利的装饰风格。





餐厅外立面有着绿色的外观和与之融为一体的绿色植物。赤土色的遮阳帘反射到室内空间,呈现温暖的室内氛围。为了吸引游客,立面保持透明,通过一个熟食冰箱的部分,给人一种熟食身份的暗示。



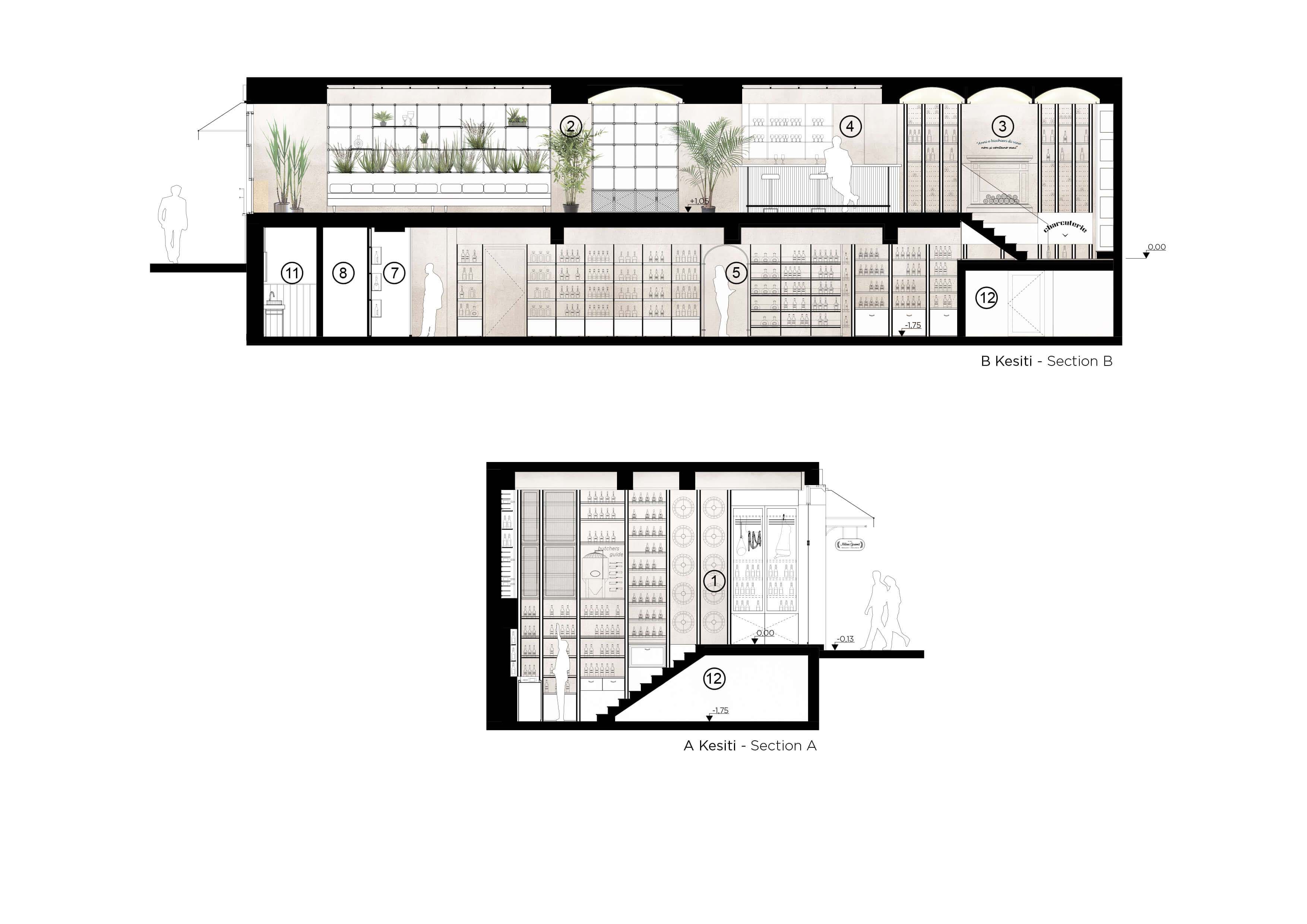
作为一个酒吧、一个熟食店和一个美食中心,餐厅的规划方式是通过两层楼分配这些空间,同时通过设计将它们连接起来。














▼ 地下一层平面图

▼ 地面层平面

▼ 立面图

▼ 剖面图

项目名称:Milano Gourmet
项目类型:餐饮空间/熟食店
项目面积:250平方米
设计公司:Slash Architects
项目位置:土耳其伊斯坦布尔
好设计网 www.haoooo.cn 欢迎投稿:infohaoooo@163.com
好设计网 www.haoooo.cn欢迎投稿:infohaoooo@163.com
