上海码趣青少儿编程学院,提供一段趣味的印象记忆
码趣学院(CodingMarch)致力于为国内青少年提供包括基础编程语言课程、竞赛辅导、机器人、科研等深度延伸领域项目。
他们的上海浦东校区基地位于锦延路,一河之隔紧靠上海科技馆,第一次来到街道的时候被道路两旁的各种类型的教育机构所震惊。感受到当下对于青少年教育的重视程度和补习课程的繁重。


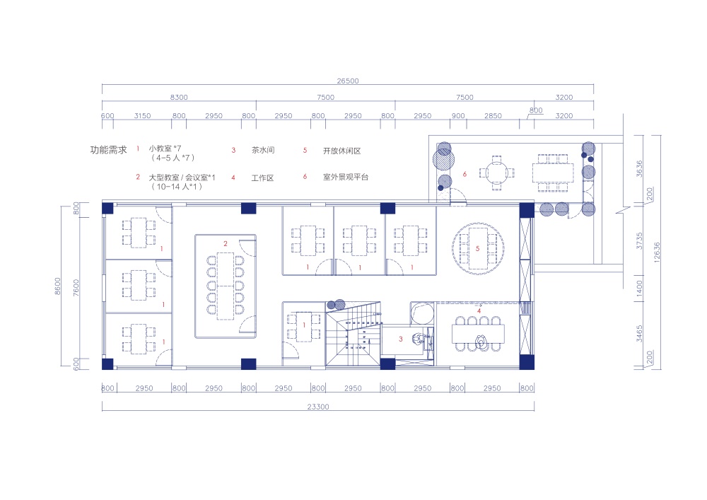
项目基地是23.3*8.6M长方形两层楼场所,沿街道为北面,一层西面一半空间面积为一家日本理发店,二层整层为使用空间,外立面整体都是玻璃幕墙。功能需求上因为客户团队具有教学的长期经验,很清晰明了。复合功能主要在希望具有讲座/学生展览/学生休闲阅读/老师灵活办公几个点上灵活转换。
激发构思主要从两个方面萌发,一是身处基地二楼时候环顾一圈,四周的树荫透过幕墙透射进来的氛围,光影斑斓。也唤起我们小时候漫无目的的奔跑在山间田野的记忆。二是激发起看Coldplay乐队MV.地面模拟浩瀚苍穹的璀璨星空图像片段尤为深刻。



身处都市,现在的青少年已经很少可以用眼睛去触摸苍穹星光之间的五色斑斓,而且我们希望强调身体的感触记忆。从这几个点入手,我们尝试在空间的视觉上保证树林的光影感,北面沿街外立面用铝板渐变穿孔表皮,形成编程代码结合繁星的璀璨效果。
在功能上强调通道路径的自由,然后连接到各个具体功能区域。不同的功能区域之间通过材料/颜色/冷暖的不同对比增加体验。


沿街道的外立面从整体考虑,我们纳入了理发店的区域范围。一层空间上我们包含:接待/家长休闲区/楼梯/卫生间/储藏室。在相对局促的空间上,我们利用吊顶的和地面的铺装上来隐形分割。立面空间上全部开敞。二层空间包含/老师的办公区域/学生的各种类型教室。在老师的办公室区域我们采用折叠门来保证不同活动下的场景转换。各功能交接的区域我们植入小型景观,室内外相互视觉上衬托。


考虑到以后会有针对小学1-6年级的青少儿教学,我们在满足空间的安全舒适使用前提下,由衷的希望营造的空间,可以通过强调五感叠加体验,为短暂学习编程之外的青少儿,提供一段趣味的印象记忆。在学业之余,漫无目的发呆片刻也会敏锐感受到不知名的美好。














▼ 基地现场

▼ 建筑外立面

▼ 概念01

▼ 概念02

▼ 概念03

▼ 一楼

▼ 二楼

▼ 1F原始平面图

▼ 2F原始平面图

▼ 1F设计平面图

▼ 2F设计平面图

项目地址:上海市,锦延路
项目类型:码趣青少儿编程学院
设计内容:建筑外立面+室内+软装
建筑面积:300平米
设计时间:2018.05—2018.06
施工时间:2018.07—2018.09
设计单位:序态设计研究室
设计团队:杨添堡,Diamond,徐林蒙,秦志伟,吴玲
室内施工: 上海延悦装饰工程有限公司
摄影师:陈颢
好设计网 www.haoooo.cn 欢迎投稿:infohaoooo@163.com
好设计网 www.haoooo.cn欢迎投稿:infohaoooo@163.com
