西班牙米诺卡海岛别墅,美的让人陶醉
Nomo Studio / 西班牙 米诺卡岛
2019-07-16
粗糙的当地石材和光滑的灰泥拼接在一起形成了这座房子的外立面,由Nomo Studio设计,可以俯瞰Menorca的大海。

房子建在一个倾斜的灌木丛山上,工作室使用了当地的石头来象征建筑和周围景观的共生关系。



石屋的北面是一个100平方米的门廊,由开放的玻璃幕墙组成,在夏季时开放为乘凉处,或在较凉爽的季节封闭形成一个冬季花园。穿过门廊是一个两层高的中央接待区,这里是住宅的核心。
卧室、起居室、厨房和车库也围绕着这个中心空间布置。木制百叶窗设有深透镜和投影框架,使住宅的立面充满活力,并将自然光带入房间。



“一些细节,比如一个坚固的悬空楼梯,结合扶手照明,在传统建筑和现代建筑之间创造了有趣的对话。”
室内也延续了外观的朴实色调,配有沙色混凝土路面,粉刷木梁和松木工。






















▼ 平面图


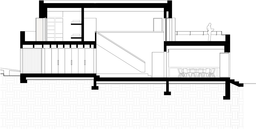
▼ 剖面图


项目名称:STONE HOUSE
项目类型:住宅空间/别墅
项目面积:400m²
项目位置:西班牙米诺卡岛
设计公司:Nomo Studio
设计团队:Alicia Casals, Karl Johan Nyqvist, Mira Botseva, Jennifer Méndez
景观团队:Cristina Gil de Biedma and Bárbara Saavedra
摄影:Joan Guillamat
完成时间:2019
好设计网 www.haoooo.cn 欢迎投稿:infohaoooo@163.com
好设计网 www.haoooo.cn欢迎投稿:infohaoooo@163.com
