飞逸视觉摄影工作室,一场回归自然的梦幻旅行
与其拍摄一个东西,不如拍摄一个意念,与其拍摄一个意念,不如拍摄一个梦幻。——曼.瑞

当十年前第一次看见蜷川实花和James casebere的作品,我被惊艳了……而这种记忆一直在我脑海,直到遇见这样一次项目机会——飞逸视觉摄影工作室设计!
希望在空间中折射出不同摄影大师的作品,就像一种影子或者思绪,哪怕是一瞬间,将他们对光,空间,自然,色彩的捕捉和艺术化能呈现在这样一个摄影工作室中。
“摄影家是一个旅行者,穿梭于主观与客观两极间的艰难旅行中,只要需要,就可以在任何地点停下脚步去开拓未知的领域–细江英公”
海洋, 星空,水波,壁桓,我们开始一场回归自然的梦幻旅行……

▲ 入口空间
海洋是生命的起源,入口参照蜷川实花的作品设置亚克力橱窗,营造浪漫的氛围


▲ 走廊空间
星空是梦幻的开始,仰望星空是人们对自然和未知世界的探索和好奇,沃尔夫冈.提尔曼斯的星空摄影是艺术对自然最好的捕捉,设计中通过mini筒灯将星空的符号嵌入天花。


▲ 前台接待
体块的组合变化,丰富的材质拼配可增加趣味的空间艺术,钛金钢板与水磨石的结合,干净而纯粹。
水波与壁桓,自然与建筑在光与影中构成了整个世界,水波纹钢板倒影出建筑的波浪起伏,远处的光线昏暗而明晃,仿佛在召唤前方的人。

▲ 服装展示
“摄影师必须是照片的一部分–纽曼”就像设计师必须是作品的一部分

▲ 拍照互动
半圆与镜面的结合,将空间延伸和闭合,几何形的运用和整体的构图相呼应。引用桑法的一句话“照片就是你的镜子,就是你”

▲ 试衣区
水波纹钢板与镜面组合,无限延长的视觉感受将空间延展和放大。

对于生与死的爱,那就是摄影——荒木经惟

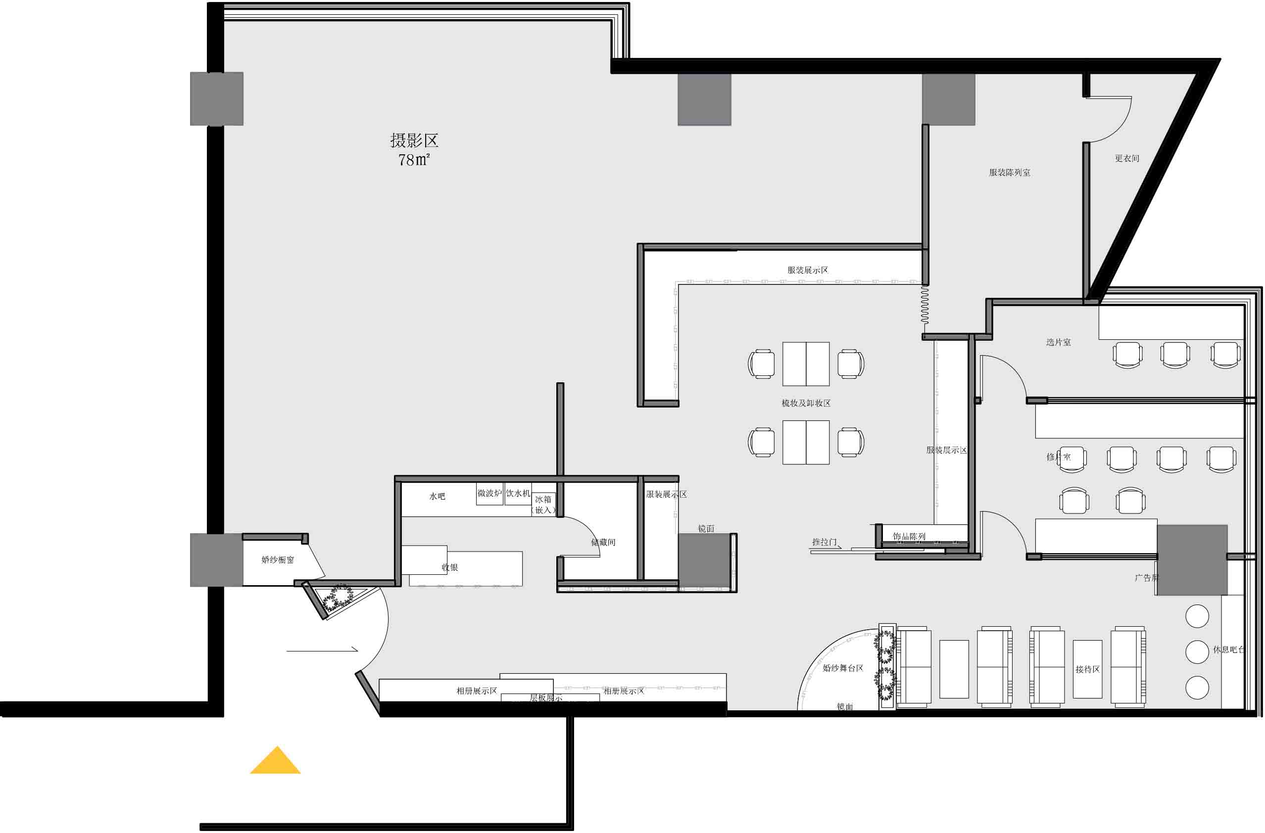
▲ 平面图
项目名称:飞逸视觉摄影工作室
项目地址:合肥之心城36楼
项目面积:200平方米
设计公司:青水空间设计工作室(上海&合肥)
主案设计师:惠天
主要材料:钛金钢板,水磨石,水泥漆
摄影:K11建筑摄影
竣工时间:2019.07.21
好设计网 www.haoooo.cn 欢迎投稿:infohaoooo@163.com
好设计网 www.haoooo.cn欢迎投稿:infohaoooo@163.com
