北京东单·蔚来体验中心(NIO House),带来别样的体验
这是一个前瞻性的电动汽车品牌“蔚来”的用户中心。NIO要求我们设计了北京CBD的用户中心。在中国,这个品牌被称为蔚来,译为“蓝天的到来”。对于NIO来说,这不仅仅是一个转折点,它是一种基本理念 – 对更美好未来的承诺。这是一个关于前进的品牌,通过诚信和风格的创新实现目标。顾客不仅要购买和拥有汽车,还要感觉良好但是,当他们驾驶NIO时,他们正在加入其社区。

通过结合初级和诱人的材料,NIO在汽车设计,细节承诺和对未来的积极愿景方面都有新的技术方法。将铝和反射表面与温暖和触感材料相结合的选择不仅仅是空间一种特殊的光芒,但带来通常与家庭相关的温暖。一个让你感觉舒适的地方。一个激发社区的地方。NIO House是体验和探索汽车的最简单方式,是驾驶汽车的第二种,因此我们希望它反映出品牌文化和细节感。巨大的圆柱形楼梯通向二楼,NIO成员踏上了汽车拥有的个人旅程。




虽然汽车世界的大部分都是关于工程设计和行动导向的设计,但NIO的文化是温暖的,以人为中心,而且很聪明。这种二元性是我们通过设计中的物理元素突出显示的。一个温馨的开放式厨房,起居区,会议室和图书馆都围绕着一个开放的论坛空间,可以提供旅行讲座和讲座。颜色和材料感觉自然,创造一个舒适和吸引人的地方。





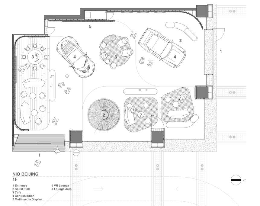
▼ 平面图


空间名称:蔚来体验中心(NIO House)东单店
空间类型:商业空间、展示空间、零售展厅
空间面积:1741平方米
空间地址:北京市东城区东单东长安街
设计公司:AIM ARCHITECTURE恺慕建筑
空间主材:玻璃、木地板、铝板、水磨石、木饰面板、乳胶漆
空间摄影:Dirk Weiblen
项目客户:蔚来NIO汽车
好设计网 www.haoooo.cn 欢迎投稿:infohaoooo@163.com
好设计网 www.haoooo.cn欢迎投稿:infohaoooo@163.com
