首尔Villa de Murir Store,活泼的美丽
Villa de Murir是美容品牌Murir的旗舰店,客户可以在此体验Murir的标志性美容配对服务。Collective B创造了一种室内设计,作为千禧一代的有效品牌传播接触点,寻求从日常生活中休息,探索他们的个人美。Villa de Murir的室内设计理念灵感来自于Murir品牌的关键词。交叠,重叠的灵感来自Murir的命名。通过分层墙和重复图案的曲线表达了盛开的花朵和果实生长过程的动机。


自由圈,象征着Murir对美的多样性的尊重,以各种方式应用于天花板,照明吊坠和壁纸图案。对于每个空间,利用不同的材料在整个空间中表达品牌标识。粉红色象征着盛开的水果和鲜花的美丽。匹配不同的使用场景,Murir pink用于三种不同的音调。粉红色用于化妆品店,以减少亮度的影响。在Beauty Select Shop中应用了桃粉,使绿色Murir产品尽可能脱颖而出。三种粉红色调中最亮的珊瑚粉色在咖啡馆中使用,色彩丰富。Villa de Murir提供的体验超过普通化妆品零售店的体验。分布在两个楼层的四个程序部分的布置方式使得无论客户在该空间中的行程如何,都可以随时查看。




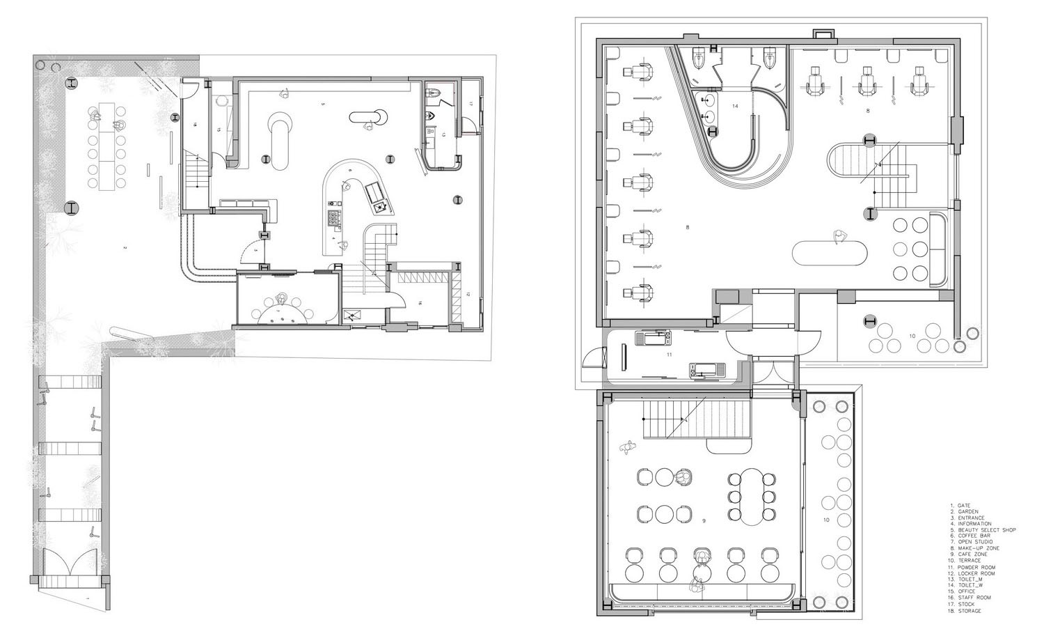
在入口区域,Murir自由圆形物体和叶状物体的天花板安装桥接了街道与实际零售空间之间15米长的距离,并激发了对美容品牌场地的好奇心。通过这个入口区域后,带透明窗口的Open Studio可以深入了解化妆内容的创建过程。


Beauty Select Shop展示Murir的产品以及其他品牌的策划产品。化妆品店提供由Murir开发的五种不同的化妆品。3. Open Studio为美容youtube内容创建者提供制作工作室。

二楼由化妆区和咖啡厅组成,咖啡馆的设计考虑了SNS精明的千禧一代,化妆区感觉就像是公共区域的延伸,让游客可以自然地感受到化妆空间的连接,而自动屏幕则在每个车站提供隐私。在化妆椅之间安装以渐变的粉红色调绘制的物体,以便顾客可以享受不受干扰的化妆服务。咖啡厅区域展示了最强大的Murir粉红色的墙壁展示。Murir各种尺寸的自由圈和多色家具以一致的方式清晰地传达“活泼的美丽”的品牌信息。







▲ 平面图
项目名称:Villa de Murir Store化妆店+咖啡厅
项目类型:商业空间、化妆店、美容中心、零售店
项目面积:562平方米
项目地址:韩国 首尔 江南区
设计公司:Collective B
主要材料:水磨石、不锈钢、冲孔钢板、瓷砖、玻璃、涂料
空间摄影:Young Kim
好设计网 www.haoooo.cn 欢迎投稿:infohaoooo@163.com
好设计网 www.haoooo.cn欢迎投稿:infohaoooo@163.com
