上海大悦城潮童天地,绚烂多彩,趣味横生
上海大悦城之潮童天地是这座爱情主题购物中心的空间延续,是为3-10岁的儿童精心设计的一个富有趣味性且多样性的娱乐、零售空间,鼓励孩子们天真无邪的无限想象力,让他们在这里释放天性,以自己的方式探索大自然。
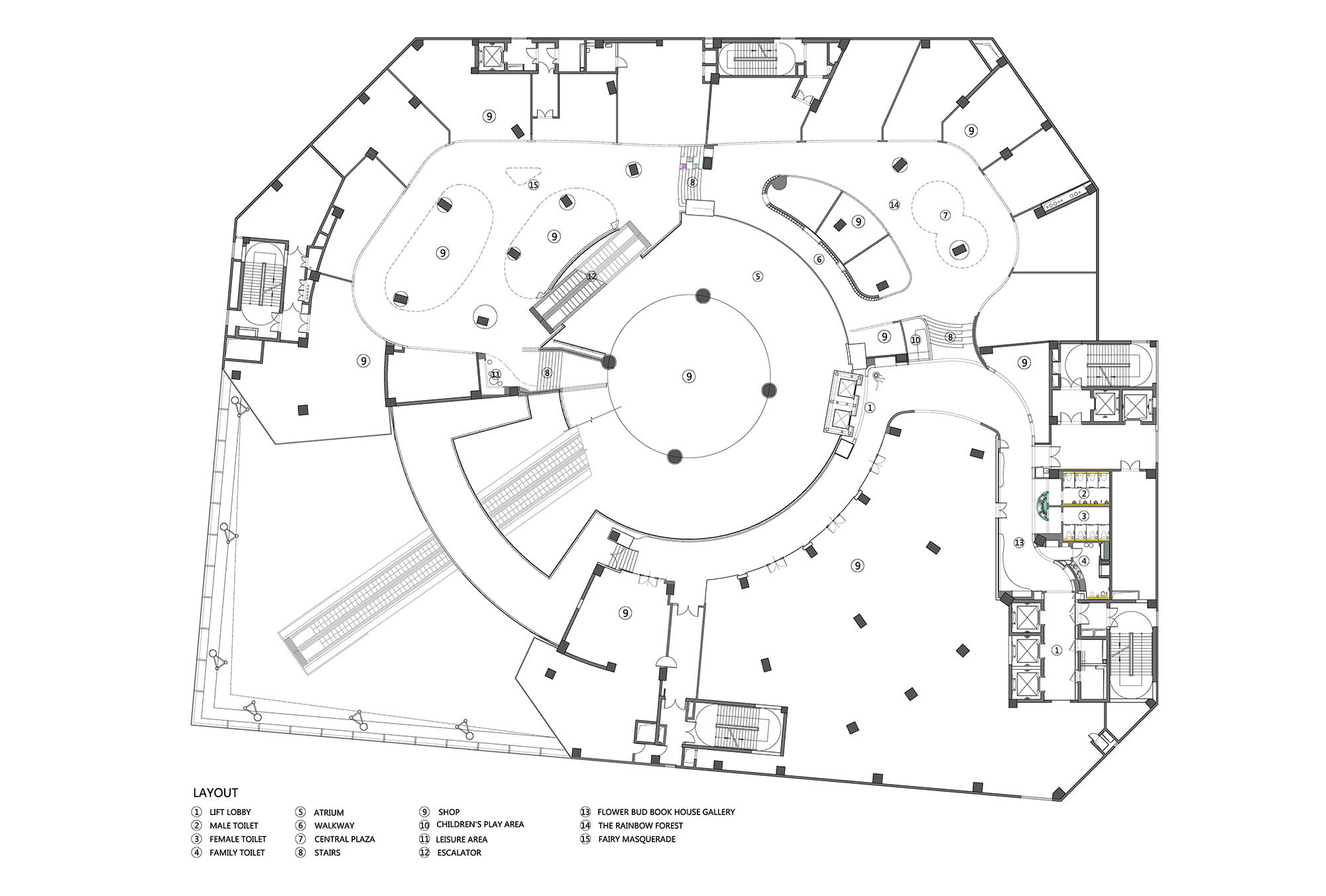
设计师灵感源自蒲公英之丘,构想出山丘的形态,运用地貌高低起伏的“等高线”韵律,在4200平米,三个高低错位楼层结构的空间里,将零售店铺和公共体验娱乐区融入环形动线之内。丰富的色彩在不同的主题空间、娱乐装置和店铺之间参差交错、相互渗透,使得整个空间绚烂多彩,趣味横生。


主题场景是从电梯厅破土而出的蒲公英花茎发散开来,“会唱歌”的花茎装置艺术鼓励孩子们用耳朵去聆听大自然的声音。

“会唱歌”的花茎装置艺术墙。

鼓励孩子们用耳朵去聆听大自然的声音。

走出电梯厅,映入眼帘的是富含童趣的花苞书屋。


花苞书屋长廊。


从“花苞书屋”鱼贯而行, 来到一段台阶之前。

台阶具备三种功能:滑滑梯、踏步、休息长凳;孩子们和家长可以选择自己喜欢的方式进入到“蒲公英之丘”。
错层结构设置的滑梯可进入彩虹森林。
“云朵”与漂浮的“蒲公英”布满整个天空,天空之下, 山丘之上的彩虹森林异常耀眼,彩虹森林一侧中间区域“山丘”是中心广场,广场是儿童游乐区,孩子们可以在此无拘无束的奔跑嬉戏,也可以在此探索未知的世界。

围绕中心广场的是零售店铺,游乐空间的位置和布局确保了各空间均与零售店铺建立良好的连接,实现了零售与体验活动的灵活转变。

“云朵”与漂浮的“蒲公英”模糊了天际线。

孩子在这里无拘无束嬉戏,用身体去触碰童趣滑梯、探索中心广场的树屋…

彩虹森林一侧的步道,商场中庭的景致尽收眼底。



孩子们可以坐在“彩虹森林”的树洞上休息,也可以捉迷藏,还可以通过仅有孩子身高的树洞进入店铺。

递进式的空间转换,由“蒲公英之丘”一个专属的台阶引领至空间最华美的区域——“精灵舞会”,台阶旁的幕布像是刚刚拉开,仿佛孩子们的化妆盒还未来来得及合上就要跳进舞池中央。

灯光璀璨的”精灵舞会“,天空浮动的蒲公英像是舞台灯,地面多彩的线条像是律动的音乐,将整个舞会气氛点燃,孩子们可以在此尽情的释放……
整个空间寓意着生命从发芽、生长到成长的过程,鼓励孩子们奇思妙想,去探索大自然的神奇之处,同时,也是设计师将娱乐体验融入零售空间中的一次创新。
▼ 灵感构想


▼ 平面图

项目名称:上海大悅城之潮童天地
项目面积:4200㎡
项目地址:中国 上海
设计公司:乾正设计
设计师:申俊伟
客户:上海大悅城 (上海新兰房地产开发有限公司)
完工时间:2018
好设计网 www.haoooo.cn 欢迎投稿:infohaoooo@163.com
好设计网 www.haoooo.cn欢迎投稿:infohaoooo@163.com
