重庆“石子九”青年酒店,年轻人打卡聚集地
“石子九酒店”是一个注重交流,互动与娱乐的酒店。主要受众目标是90,00后的年轻游客们。因此我们希望这个酒店与传统酒店相比,除了为旅行者提供基本的住宿服务以外,更加可以提供一个良好的互动平台,成为一个时尚互动为一体的年轻人打卡聚集地。我们也希望酒店能够体现一些当地的民俗民风,能够让游客对重庆这个城市留下一个深刻的印象。



建筑的原始平面结构是以一条狭长封闭的走廊连接各个房间与电梯楼梯间,并没有任何的公共区域可以使用,这不是我们所期待的空间形式,为了营造一个更加趣味性的酒店体验,我们尽量的精简房间内部的布局,将原本狭长的走廊变得更加宽敞和富有变化性以及功能性。我们在酒店的公共区域设置了酒吧和餐饮中心,以及散落在各个部位的众多休闲区域,让整个酒店的公共区域看起来更像是一个大型的咖啡厅或者休闲会所,使顾客的身心得到放松。而每一个酒店的房间则显得更随意的安排在公共空间的各处,希望这样可以让顾客更想走出房间在公共区域中自由活动的欲望。



我们将公共空间设想为街道的缩影,这样就让二层房间朝向酒店公共区域进行开窗显得不那么突兀,这样做一方面弥补了二层因为结构的原因所带来的采光不足,另一方面,也能够增加房间与公共区域之间的交流互动性。为了增加公共空间的人气感,我们也将二楼的过道做成了开放式的,让上下之间没有完全的分隔,增加上下的互动可能性,这样空间关系也就变的更加的有趣了。


酒店的层高只有4.8米,我们需要在这个有限的高度空间中,隔出两层来设置上下两个功能齐全的独立酒店房间,以及两层房间所需要的全部管线。为了保证两层的房间都有一个舒适合理的房间高度,我们就不能单纯的把2层的地面设定为一个固定的标高,而是仔细分析了每一个房间内不同活动所需要的合理高度,来专门设置1,2层的空间布局。例如我们将2层床的高度以下的空间都分配给一层使用,来增加一层天花的高度,而我们降低一层的厕所,床等空间的天花板高度,来增加二层房间的空间高度。这样的设计,每一个房间中就会出现各种高低不一的空间场所,居住者在实际的居住体验中就很难察觉到原始场地高度不足的问题了。



酒店的层高只有4.8米,我们需要在这个有限的高度空间中,隔出两层来设置上下两个功能齐全的独立酒店房间,以及两层房间所需要的全部管线。为了保证两层的房间都有一个舒适合理的房间高度,我们就不能单纯的把2层的地面设定为一个固定的标高,而是仔细分析了每一个房间内不同活动所需要的合理高度,来专门设置1,2层的空间布局。例如我们将2层床的高度以下的空间都分配给一层使用,来增加一层天花的高度,而我们降低一层的厕所,床等空间的天花板高度,来增加二层房间的空间高度。这样的设计,每一个房间中就会出现各种高低不一的空间场所,居住者在实际的居住体验中就很难察觉到原始场地高度不足的问题了。


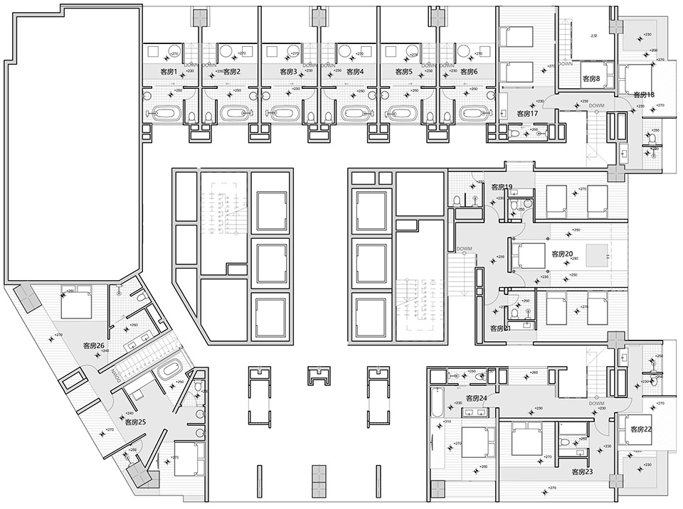
▼ 平面图


▼ 剖面图


项目名称:“石子九”青年酒店
项目类型:青年旅舍
建筑面积:1400平方米
项目地址:重庆市江北区龙湖新壹街D馆4号楼17F
主创设计:薛今
主要材料:青砖、瓷砖、木地板、混凝土、自流平、玻璃、白色乳胶漆
空间摄影:王学军
项目客户:石子九酒店
好设计网 www.haoooo.cn 欢迎投稿:infohaoooo@163.com
好设计网 www.haoooo.cn欢迎投稿:infohaoooo@163.com
