乡村田野私宅,浸于日常生活的、反乌托邦的家
缘起:由不确定性引发的思考
这几年乡建的话题在政策和资本的引导下,已经成为中国建筑设计界不可或缺的热门话题。我始终认为,场所和人之间的关系极其重要,如果无法精确地定义场所中人的生活、行为、动线,设计前期对不确定性的研究会生成多种空间形态,在最终的方案里被动形成一部分多义性空间。在城市脉络中做设计,这种不确定性普遍存在,整个设计过程,甚至建成之后都需要面对功能变动的问题。在很大程度上,这是资本、市场、政策、业态等外部条件本身的变动导致的。和大部分城市项目一样,典型乡建项目无法逃脱外部条件带来的“不确定性”。
带着这些思考,空格建筑在2019年完成了一次“非典型性”的乡建住宅项目。业主是一对年逾六十的本地夫妇,他们的房子是三十多年前修建的,几年前已经被政府部门鉴定为危房。业主决定在原有的宅基地上重修一座新的自宅,作为夫妇二人自住养老的归所,也可以供市里生活的子女偶尔回家小住。因为业主完全没有任何商业化的考虑,设计的价值完全体现在使用者的体验之上。在与业主进行沟通之后,我们决定为业主设计一处浸于日常生活的、反乌托邦的家。
总体策略:回应乡村的“两套规则”
项目位于上海郊区,基地东西紧邻其他村宅,南边面对农田为开阔景观,北侧靠近道路。原来的房子和村子里大部分自建房的形式比较接近,主房部分为两层,辅助用房与主房共用山墙,只有一层,主辅用房都是双坡屋顶。在深入调研之前,我们认为江浙一带农村自建房千篇一律的原因是业主对设计的重视程度不够造成的,在有限的造价和建造技术限制下,只能采取一样的形制来得到更多的房间和面积,美学追求甚至不在讨论的范围。而事实上,自建房的设计要求是一个系统化决策,设计规范对方案的影响甚至超过了造价、技术和审美。
乡村私宅的设计需要面对两套规则的限制:一是农村自建房管理规定,比如屋脊、檐口高度必须统一,住宅面积和宅基地面积等数据也是明文限定;二是当地约定俗成的“规矩”,比如阳台露台不计入房屋面积,南北房屋靠马路一侧的山墙要对齐,房屋的南立面不能比西边邻屋的北立面更靠南,山墙上不能做拱形窗户等等。设计规范和当地规矩这两套规则共同作用,生成了现代村落的肌理,清晰地定义了建筑的总体尺寸和形式。

▲ 轴测图

▲ 建筑南立面不超过西侧相邻房屋北立面
我们决定采用低调的姿态积极地融入当地的乡村肌理。通过对两套规则的分析和深入当地的调研,设计自然呈现为一个南北向双坡双层的矩形体量,在保持面积不超出规范的情况下,面宽被拉长,南向景观和采光面相应增加。在房子的南侧靠近田野的部分保留了室外菜园和晒场,建筑设计中则强化江南建筑挑檐的语言与低缓的水平线相结合,利用宜人的尺度统一景观与建筑两个部分。

▲ 融入当地乡村肌理
空间逻辑:公共/共有/私有
在法语中,公共的意思是执政者创造出的空间,共有则是人们自己创造出的空间。在空间排布方面,我们强调了室内空间和室外景观之间相互观照的高度互访性,将建筑的公共/共有/私有三个部分整合并加以区分。对于室内部空间的排布,满足业主夫妻日常生活和邻里交往成为整理两层空间的关键。

▲ 菜园夜景透视
一层南边院子里按照业主的习惯保留了菜地,并在一侧重新设计了宽大的洗涤槽,平日里洗菜刷碗、种地取水等都在户外完成。建筑师在院子的边界设计了一些简单的体块来限定场地,不需要晾晒作物和被褥的时候,这里也可以成为邻里相聚休闲的场所。
村子里的流动人口比例远比城市里低,人与人之间的关系更加紧密。我们为业主和邻居设计了客厅、厨房、餐厅等一系列共有空间。客厅的概念在这里被无限放大,位于一层的菜地、晒场、厨房、餐厅都可以是邻居相聚聊天的地点。从院子里的菜地拔出带着泥土的萝卜,就在菜地边冲洗干净,过路的邻居在院子门口寒暄几句,便搬张凳子坐下来开始聊天。天气好的时节,相熟的邻居一起在院子里洗洗涮涮,杀鸡杀鱼也在院子里的大水池旁聊着家长里短。平日里做饭的时候,来串门的邻居和主人同时待在厨房里,不时下到菜地里取来新鲜蔬菜。

▲ 一层平面图

▲ 庭院局部

▲ 与邻居相聚

▲ 玄关
江浙一带的农村住宅依然保留着传统民居的布局逻辑——正厅或堂屋的中央空间是神格空间,每逢重要节日需要承担祭祖、宴会等功能,其他房间都围绕着堂屋这个精神性的空间展开。堂屋既是家庭生活的中心,亦是室内外联系的节点。在这次设计中,堂屋的概念与客厅重叠,形成一个可变空间。
乡村住宅的整个一层几乎是可以与邻居共享的。我们希望在设计的节点空间充分还原江南建筑室内外交融的特点,所以除了厨房、餐厅这部分辅助用房,主房的玄关与客厅的交接处设计了移门,玄关也可以作为打麻将或会客的独立空间。

▲ 客厅

▲ 厨房
在楼梯处设计了半通透的木格栅门,作为进入二楼的提示,也是共有空间和私人空间的分隔。
细节落实:两代人的生活
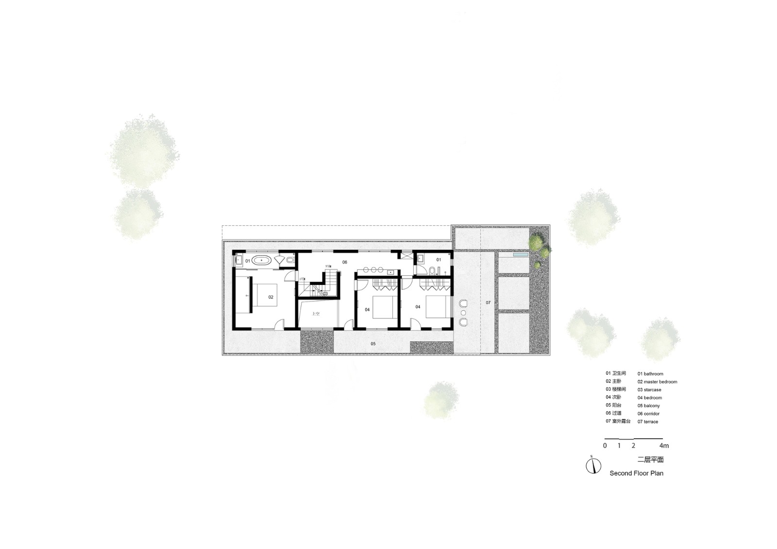
二楼主要包括业主和儿女的卧室,以及供家庭成员偶尔交流休闲的角落。二楼的空间排布以功能和效率为出发点,利用走廊串联各个卧室、洗手间。我们在走廊挑空处设计了一个简单的水吧,将“共有”的概念从一楼玄关延伸到二楼,也消解了走廊作为纯粹交通空间的用途。
业主的儿女平时在上海工作生活,希望回到远郊父母家中可以保留乡村生活的悠闲与城市的私密感。我们将客卧和客卫整合成为一个完整空间,在景观和采光上充分考虑视野和采光的需求。除了马桶之外,洗手间的各项功能都以开放的姿态存在,室内和家具更加强调原木带来的温暖和放松的气氛。
我们希望为习惯了现代生活的年轻一代可以充分享受回归田野的自由感,在自然中感受时间的印记。

▲ 二层平面图

▲ 二层走廊

▲ 二层主卧

▲ 主卧浴室
二楼的阳台和露台是二楼室内空间向外的延伸,偶尔可以邀请亲友进行相对私密的露天晚餐、烧烤派对,并且不会受到打扰。二楼的室外空间与一楼和远处田野在视线上的联系很紧,又保留了一些距离。

▲ 二层露台

▲ 二层露台看远处房屋
阁楼处在住宅最私密的部分,是完整的私人空间,由多功能活动室、储藏室和一个很小的屋顶户外花园组成。小花园位于坡屋顶最高的山花部分,在坡屋顶开洞,化解了层高的限制。除了提升阁楼的采光和通风条件,私密的阁楼花园可以成为偶尔回来小住的女儿提供一片瞭望、思考、冥想的私密天地。

▲ 阁楼平面图

▲ 通往露台花园的玻璃门与储藏室木门

▲ 阁楼多功能空间

▲ 阁楼屋顶花园
为何而建:占有与使用
如今资本依然推动着建筑的商品化,人们所憧憬的乡村生活方式的意象赋予了乡建项目很高的投资价值,建筑作为一种视觉的文化符号被消费和传播。我认为居住的本质,是基于使用者在空间中的身体经验的集合。当使用者进入一种意象之中,其空间体验并不能成为居住。从这个角度来说,物质的建构、形式、构成、细节等等陷于设计语言层面的讨论应归于技术和美学的范畴,而非建筑本体。

▲ 西立面
作为建筑师,我时常反思“为何而建”的问题。在“作为占有对象”和“作为使用对象”的建筑设计中,建筑师所面对的责任和享有的自由并不相同,其中的“不确定性”是始终存在的。这些不确定性最终可以呈现为一场激进的建筑实验,亦或是,一次对生活的回顾和冒险。
建筑与景观细节






▼ 总平面图

▼ 屋顶平面图

▼ 南立面图

▼ 北立面图

▼ 东立面图

▼ 西立面图

▼ 剖面图AA

▼ 剖面图BB

▼ 剖面图CC

项目类型:独立住宅
项目面积:230.0 m²
项目地点:中国上海
建筑设计:空格建筑
主创建筑师:高亦陶、顾云端
设计团队:高亦陶、顾云端、方寒柒、周怡、陈和巧、叶常青、陈静仪
施工方:上海堂威装饰工程有限公司、上海恒制建筑工程有限公司
空间摄影:值更
厂家:Jinda 金达彩瓦, Rongzhen 荣振石材, Terraco 涂耐可, Urksir 欧克斯
项目年份:2019
好设计网 www.haoooo.cn 欢迎投稿:infohaoooo@163.com
好设计网 www.haoooo.cn欢迎投稿:infohaoooo@163.com
